|
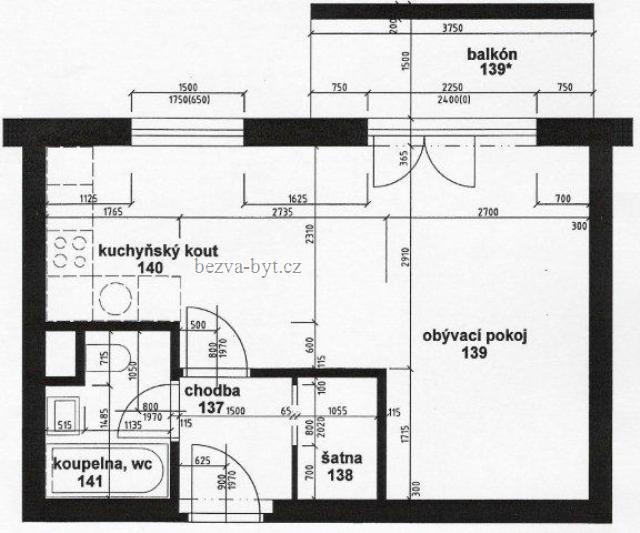
Prodej nového bytu s garážovým stáním 1+KKLokalita: okres Praha 6, Praha 6, Suchdol, Holubí 1241/6 Cena: 2 900 000 Kč Obytná plocha: 31 m2 Popis:
PRODÁM nový zděný BYT 1+KK s GARÁŽOVÝM STÁNÍM, Praha 6 – Suchdol, ul. Holubí, OV, kompletně vybavený, obytná plocha 31,5 m² + velký balkon, pěkná dispozice a využitelnost, bezp. dveře, el. zabezpečení, poplatky jen 1.000,-Kč/měsíc, cena 2,9 mil Kč. Tel. 739750090, e-mail: [email protected]Zakázkové číslo: 1241 Přímý kontakt na brokera: Kubešová, [email protected]
|
Pro další informace kontaktujte: Kubešová Holubí 1241/6 tel.: 739750090 [email protected]
|
|
|
|










|
Zapsáno: 03.06.2009 10:07:42 |
|
|
|
|