Prodej bytu ul. ŠafaříkovaLokalita: okres Praha 2, Vinohrady Cena: 4 158 000 Popis:
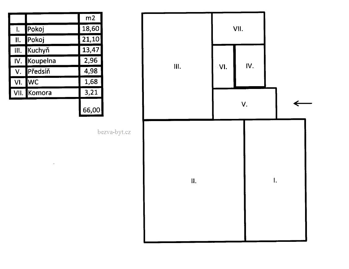
Nabízíme k prodeji prostorný byt 2+1 o ploše 66 m2, ve 4. NP (3.patro) cihlového domu s výtahem ve velmi atraktivní, klidné a výborně dostupné lokalitě ul. Šafaříkova, Praha 2 – Vinohrady.Byt je v dobrém stavu s kuchyňskou linkou, centrální vytápění. Výměra místností: pokoje 21 m2 a 18,60 m2, kuchyň 13,5 m2, koupelna 3 m2, WC 1,7 m2, předsíň 5 m2, komora 3,2 m2. Dům ve velmi dobrém stavu. V domě vlastní kotelna, centrální vytápění. Vynikající lokalita, veškerá infrastruktura v místě, metro, tram. OV, lze financovat hypotékou. Cena 4 158 000,-Kč Přímý kontakt na brokera: 777449401
|
Pro další informace kontaktujte: Jiri Tomášek Na Zvonařce 1A Praha 2 12000 tel.: 777449401 [email protected]
|
|
|
|









|