|
|
Prodej bytu 3+kk v River DiamondLokalita: okres Praha 8, Karlín Cena: 7 000 000 Popis:
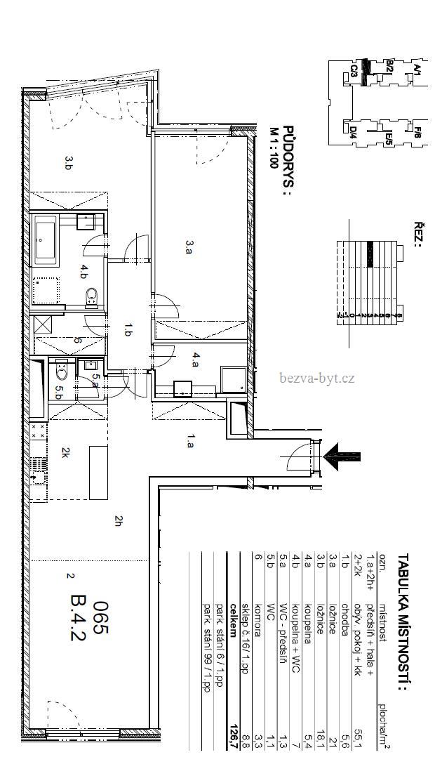
Nabízíme k prodeji nový byt 3+kk o celkové výměře 127 m2, 3NP, v komplexu River Diamond, Rohanské nábřeží, Praha 8. Byt je vybaven dvěma koupelnami, toaleta zvlášť, šatna. Budova je chráněna 24h ostrahou. K bytu náleží parkovací stání ve společné garáži a sklep, vše v ceně. Orientace – východ, západ. Cena 7 000 000,-Kč
Přímý kontakt na brokera: 777449401
|
Pro další informace kontaktujte: Jiri Tomášek Na Zvonařce 1A Praha 2 12000 tel.: 777449401 [email protected]
|
|
|
|










|
Zapsáno: 01.11.2012 13:21:28 |
|
|
|
|