|
|
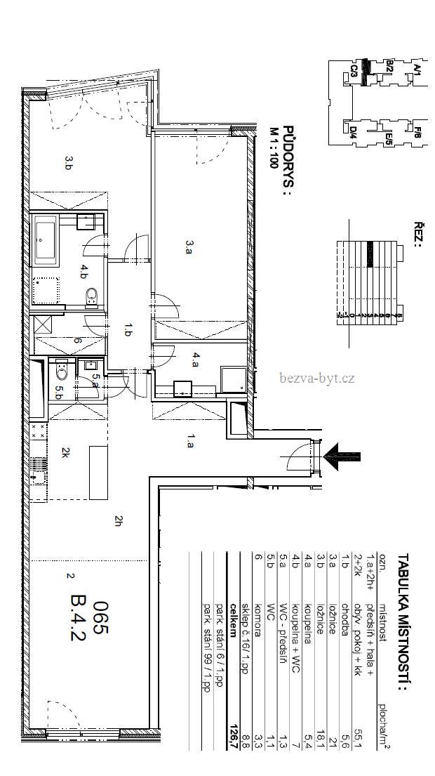
Prodej bytu 3+kkLokalita: okres Praha 8, Karlín Cena: 7 000 000CZK/Objekt Popis:
Nabízíme k prodeji nový byt 3+kk o celkové výměře 127 m2, 3NP, v komplexu River Diamond, Rohanské nábřeží, Praha 8. Byt je vybaven dvěma koupelnami, toaleta zvlášť, šatna. Budova je chráněna 24h ostrahou. K bytu náleží parkovací stání ve společné garáži a sklep, vše v ceně. Orientace – východ, západ. Cena 7 000 000,-Kč
|
Pro další informace kontaktujte: Jiří Tomášek Zvonařka 1a, Praha 120000 tel.: 777449401 [email protected]
|
|
|
|

















|
Zapsáno: 20.09.2012 11:28:37 |
|
|
|
|