|
Nový 1+kk + šatna 40m, P západ Kozinec- HolubiceLokalita: okres Praha – západ, P západ Cena: 8.000,-+2.000,- poplatky Popis:
HOLUBICE a KOZINEC se nacházejí pouhých 8 km od hranice Prahy 6 - Suchdol
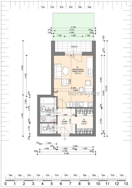
1+kk, 41m2 s předzahrádkou a terasou, byt dosud neobýván;vybavení – nová kuchyňská linka, sporák se sko-keramickou deskou (vestavěné), jinak nezařízeno;
cena 8.000,-+2.000,- poplatky (zálohově);
Přímý kontakt na brokera: 775966623 Petra Najmanova
|
Pro další informace kontaktujte: XT REALITY Koněvova 1229/98, 130 00 Praha 3 - Žižkov tel.: 775 966 623 [email protected]
|
|
|
|

|
Zapsáno: 27.02.2009 12:24:42 |
|
|
|
|